Mundi
Cliente
Patrimônio Incorporadora
Local
Avenida Ephigênio Sales, 2.240
Manaus / AM
Ano
Início do projeto: 2006
Início da obra: 2012
área
Terreno: 70.000 m²
Contruída: 142.000 m²
Apartamentos: 96, 106,
165 e 180m²
Lojas: 29 a 61 m²
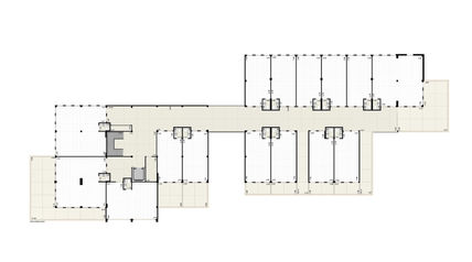
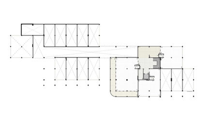
Condomínio de uso misto com posto por um Mall de 80 lojas e 60 escritórios na testada do terreno por uma estenção de 207m. Na parte central temos uma portaria para acesso ao condomínio de 11 torres residenciais, divididos em 3 fases de construção, mas todos integrados. Nele temos 784 apartamentos de 96, 106, 143, 165 e 180 m².
O projeto do Mundi foi uma revolução no mercado imobiliário de Manaus, ganhamos a Premio Master Imobiliário no ano de lançamento!
O eixo de circulação tem vias de carros nas laterais e uma ampla alameda de pedestre, que liga os 3 conjuntos de prédios. Eles começa na portaria e vai até o fundo, atravessando uma área de proteção permanente que corta o terreno através de uma ponte.
Destacamos na implantação as vagas estarem em sobressolos deixando tota a área de laser sem carros, as 3 piscinas têm fundo infinito, área para natação e deck molhado, nas áreas de uso comum os moradores usufruem de 100 ítens, com muito luxo e comodidade.
EQUIPE
Autores:
Marcia Gullo, Juliana Felicíssimo, Ricardo Ramires, Renata Bedone
Colaboradores:
Jefferson Doki, Ricardo Marmorato, Solange Fonzar
Estagiários:
Marisa Cristina
___
Coordenação:
PAR Arquitetura
Paisagismo:
Sergio Santana
Interiores:
Paula Weberman e Kika Sartori
Estrutura:
Eduardo Penteado, Figueiredo Ferraz (ponte)
Fundações:
Apoio e Geodata
Instalações:
RC Engenharia
Ar condicionado:
Willen Scheepmaker
Geiah - consultoria de projeto de condomínio























